
Informace o projektu
Bytový dům v ulici Roháčova v Praze 3 Žižkov je koncipován jako moderní bytový objekt zaměřený především na velmi kvalitní bydlení.Pětipodlažní dům s obytným podkrovím po kompletní nadstandardní rekonstrukci v sobě spojuje prvky současné moderní architektury a zároveň zachovává s citem k době minulé prvky tehdejší doby. Kouzlo starých žižkovských čtvrtí dokresluje celkovou atmosféru bydlení v této části města.
Umístění bytového domu skýtá bydlení v klidné a přitom centrální části města s dobrou dopravní obslužností.
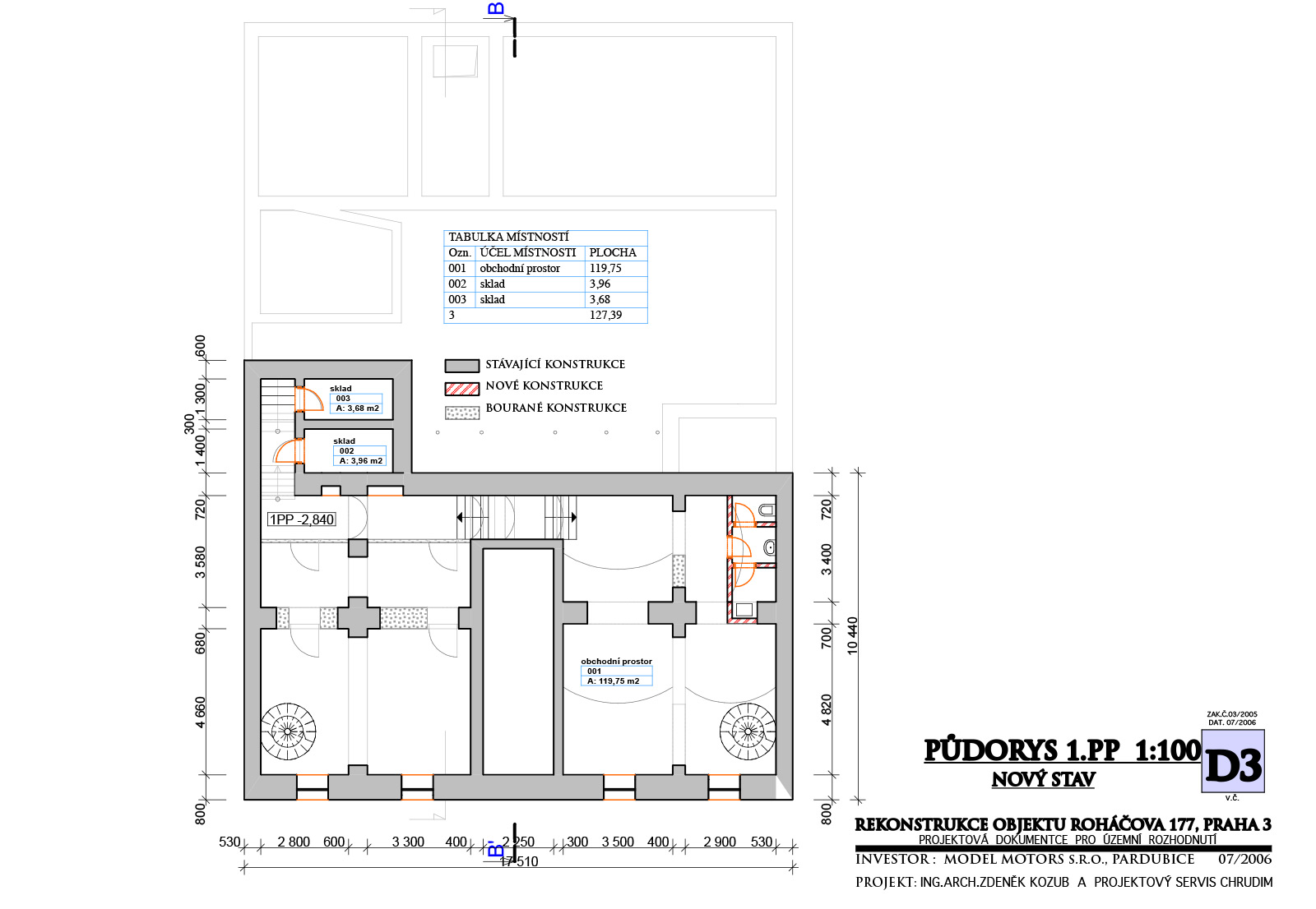
Bytový dům je dispozičně rozdělen na přední a zadní část domu, vnitroblok domu ukrývá inteligentní systém parkování, v přízemí společné prostory v domě, bezbariérový vstup do domu, ke schodišti a k výtahu.
Postup realizace
Ke stažení